CUSTOM SINGLE-FAMILY + SECONDARY SUITE

Features:

  • Two Storey Wood Construction (Concrete Foundation)

  • Total Floor Area: 4075 Sqft (378.5 Sqm)

  • 1 Bedroom + 1 Full Bathroom Secondary Suite: 500 Sqft (46.5 Sqm)

  • 3 Bedrooms + 3 Full Bathrooms + 1 Powder Room

  • Front Sun Deck: 340 Sqft (31.5 Sqm) + Backyard Balcony: 112 Sqft (10.5 Sqm)

  • Spacious Entertainment/Recreation Area + Den/Office

RESIDENTIAL HOME + SECONDARY SUITE.

NANAIMO, BC

Designer: Carson Wong - 88RED Design

Role: Designer & Draftsperson

Main & Second Floor Plans

Main Floor: 2200 Sqft (204 Sqm)

Second Floor: 1875 Sqft (174 Sqm)

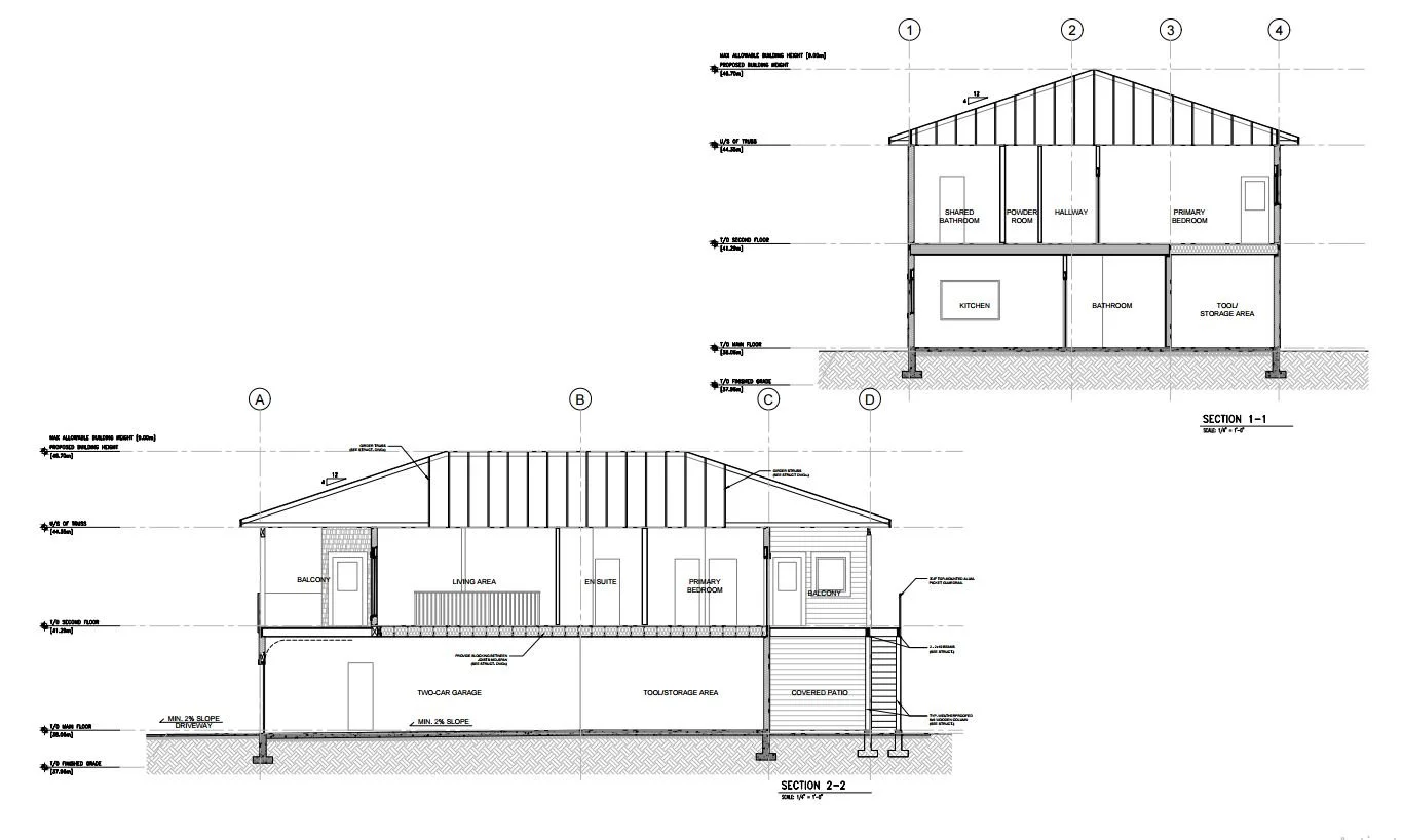
House Sections

Building Height: 28.3 Ft (8.6m)

Front & Right Elevations

Back & Left Elevations

Previous
Previous

CUSTOM - Single-Family Residential

Next
Next

CAD - Residential Renovation