RESIDENTIAL RENO & EXPANSION

SCOPE OF WORK

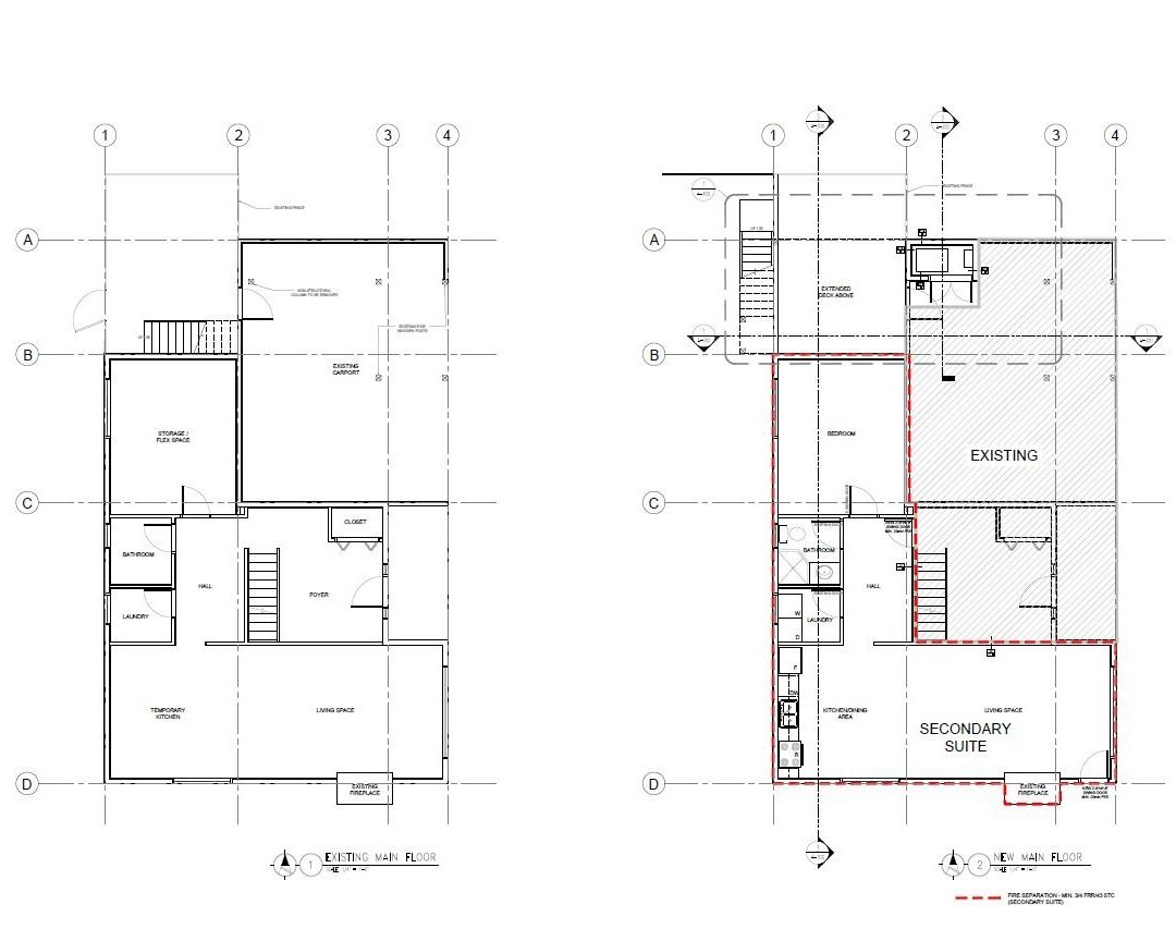
  • Divided upstairs and downstairs into two different suites with the appropriate fire separations and assemblies.

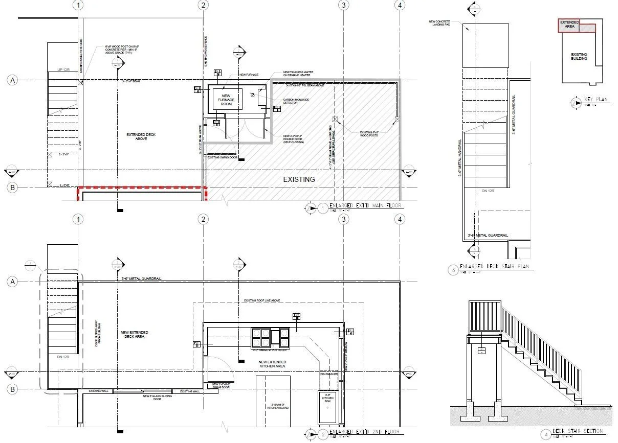
  • Extended both the second floor kitchen and deck to allow for more spacious living.

  • Produced drawing package to submit to the City of Coquitlam for Building Permit.

KITCHEN & DECK RENO/EXPANSION.

COQUITLAM, BC

Designer: Carson Wong - 88RED Design

Role: Designer & Draftsperson

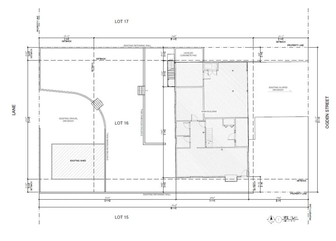
Site Plan

Existing & Proposed Main Floor Plan

Existing & Proposed Second Floor Plan

Kitchen Exp’d: 105 Sqft (9.8 Sqm) + Deck Exp’d: 193 Sqft (17.9 Sqm)

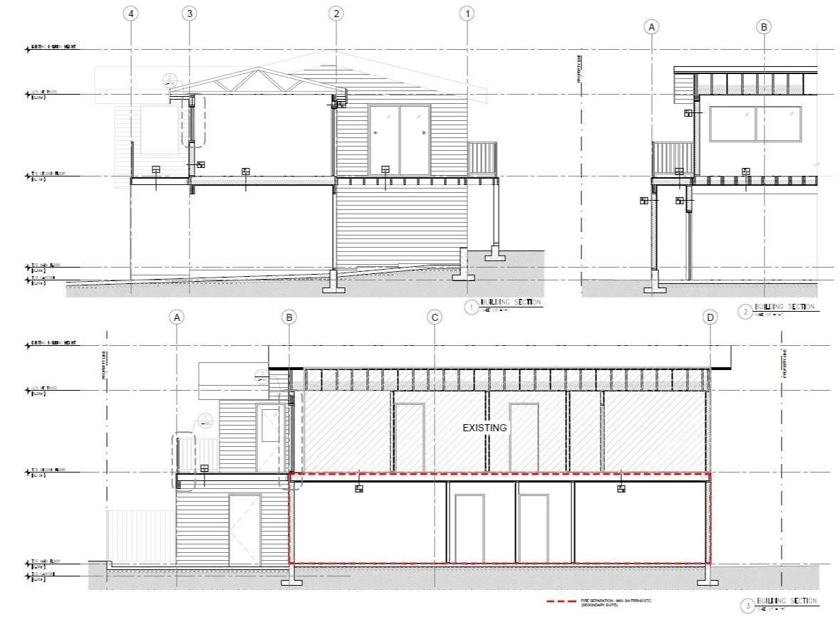
Building Elevations

Building Sections

Enlarged Floor Plans

Previous
Previous

CUSTOM - Residential + Secondary Suite

Next
Next

CAD - Residential Deck Addition